Description
RIMLESS WALL-HUNG TOILET PAN RAK CERAMICS & GROHE SLIM PLATE 39501000 WC FRAME
SET 5 in 1 CONSISTING OF:
- GROHE RAPID SL 1.13M WALL HUNG WC FRAME - 39501000
- GROHE SKATE COSMOPOLITAN GLOSS CHROME DUAL FLUSH PLATE S - 37535P00
- GROHE FIXING WALL BRACKETS (set of 2)
- RAK RESORT RIMLESS WALL-HUNG TOILET PAN - RSTWHPAN
- SOFT CLOSE SEAT - RAKSEAT006
GROHE WALL-HUNG CONCEALED CISTERN FRAME:
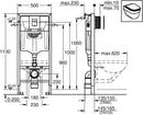
Take confidence and comfort from the smart design and strength of the GROHE Rapid SL 3-in-1 installation set for wall-hung toilets. Even fitting it is straightforward. The steel frame is certified to hold loads of over 400 kg for ultimate stability and it can be installed in front of a solid wall or within a stud wall in next-to-no-time thanks to the GROHE QuickFix system, which requires no tools to connect a hose, inspection shaft and water supply. The GROHE EcoJoy dual flush system is kinder to the environment, reducing water consumption by up to 50%. Noise transmission to the building is kept to a minimum thanks to GROHE Whisper technology, engineered with low-noise fittings and separate plumbing. The set comes with wall brackets and an attractive Skate Cosmopolitan chrome flush plate.
PRODUCT DETAILS:
- Brand: Grohe
- 2 WC fixing bolts
- For on-the-wall installations or studded walls
- Front actuation
- Water supply from left/right or back
- Insulated against condensation
- Powder-coated steel frame, self-supporting
- Two modes of operation: dual flush (6/3l)
- GROHE Starlight offers a made-to-last chrome finish
- 10-year guarantee
- Wall brackets included.
RAK RESORT RIMLESS WALL-HUNG TOILET PAN & SOFT CLOSE SEAT:
- The toilet Pan Includes Quick release soft close seat.
- Beautifully designed and produced to the highest standards
- Manufactured from high-grade ceramic
- Wall Hung toilet pan designed to maximize available space
- It comes in an attractive white finish for universal appeal.
- Extremely easy to install and use
- Toilet seat supplied with two years of guarantees from the. manufacturer
